



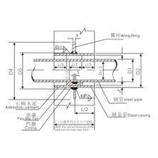
適用范圍:剛性防水套管適用于管道穿墻處不承受管道振動和伸縮變形的構(gòu)(建)筑物,對于地震設防要求的地區(qū),如采用剛性防水套管,應在進入池壁或建筑物外墻的管道上就近設置柔性連接,A型適用于鋼管。
剛性防水套管(A型)尺寸表、重量表
表中DN為防水套管公稱通徑,D1為該套管設計穿管外徑,D3為防水套管管子外徑,D4為翼環(huán)外徑
| DN | D1 | D2 | D3 | D14 | δ | B | k | 重量 (kg) |
| 50 | 60 | 80 | 114 | 225 | 3.5 | 10 | 4 | 4.49 |
| 65 | 75.5 | 95 | 121 | 230 | 3.75 | 10 | 4 | 4.66 |
| 80 | 89 | 110 | 140 | 250 | 4 | 10 | 4 | 5.33 |
| 100 | 108 | 130 | 159 | 270 | 4.5 | 10 | 5 | 6.36 |
| 125 | 133 | 155 | 180 | 290 | 6 | 10 | 6 | 8.33 |
| 150 | 159 | 180 | 219 | 330 | 6 | 10 | 6 | 1O.06 |
| 200 | 219 | 240 | 273 | 385 | 8 | 12 | 8 | 15.9 |
| 250 | 273 | 295 | 325 | 435 | 8 | 12 | 8 | 18.68 |
| 300 | 325 | 345 | 377 | 500 | 10 | 14 | 10 | 27.40 |
| 350 | 377 | 400 | 426 | 550 | 10 | 14 | 10 | 30.95 |
| 400 | 426 | 445 | 480 | 600 | 10 | 14 | 10 | 34.35 |
| 450 | 480 | 500 | 530 | 650 | 1O | 14 | 10 | 37.85 |
| 500 | 530 | 550 | 590 | 730 | 10 | 16 | 10 | 44.54 |
| 600 | 630 | 660 | 690 | 830 | 10 | 16 | 10 | 54.50 |
| 700 | 720 | 750 | 790 | 920 | 10 | 16 | 10 | 61.43 |
| 800 | 820 | 850 | 880 | 1020 | 10 | 16 | 10 | 69.12 |
| 900 | 920 | 950 | 980 | 1120 | 10 | 16 | 10 | 76.81 |
| 1000 | 1020 | 1050 | 1080 | 1230 | 10 | 16 | 10 | 84.50 |
| 1200 | 1220 | 1250 | 1290 | 1430 | 12 | 20 | 12 | 122.5 |
| 1400 | 1420 | 1450 | 1490 | 1630 | 12 | 20 | 12 | 141.3 |
| 1600 | 1620 | 1650 | 1690 | 1830 | 14 | 20 | 14 | 176.4 |
| 1800 | 1820 | 1850 | 1900 | 2040 | 16 | 20 | 16 | 216.6 |
| 2000 | 2020 | 2050 | 2100 | 2240 | 16 | 20 | 16 | 239.3 |
B型鋼性防水套管尺寸重量表
表中DN為套管公稱通徑,D1為該套管設計穿管外徑,D2為防水套管管子外徑,D3為翼環(huán)外徑
| DN | D1 | D2 | D3 | δ | b | k | 重量(kg) | |
| 鑄鐵管 | 球鑄鑄鐵管 | |||||||
| 75 | 93 | - | 140 | 250 | 4 | 10 | 4 | 5.33 |
| 100 | 118 | 118 | 168 | 280 | 4.5 | 10 | 5 | 6.27 |
| 150 | 169 | 170 | 219 | 330 | 6 | 10 | 6 | 10.06 |
| 200 | 220 | 220 | 273 | 385 | 8 | 12 | 8 | 15.90 |
| 250 | 271.6 | 274 | 325 | 435 | 8 | 12 | 8 | 18.68 |
| 300 | 322.8 | 326 | 377 | 500 | 10 | 14 | 10 | 27.40 |
| 350 | 374 | 378 | 426 | 550 | 10 | 14 | 1O | 30.98 |
| 400 | 425.6 | 429 | 480 | 600 | 10 | 14 | 10 | 34.35 |
| 450 | 476.8 | - | 530 | 650 | 10 | 14 | 10 | 37.85 |
| 500 | 528 | 532 | 590 | 730 | 10 | 16 | 10 | 44.54 |
| 600 | 630.8 | 635 | 690 | 830 | 1O | 16 | 10 | 54.50 |
| 700 | 733 | 738 | 790 | 930 | 10 | 16 | 10 | 62.19 |
| 800 | 836 | 842 | 900 | 1040 | 10 | 16 | 10 | 70.65 |
| 900 | 939 | 945 | 1000 | 1140 | 10 | 16 | 10 | 78.34 |
| 1000 | 1041 | 1048 | 1100 | 1240 | 10 | 16 | 1O | 104.7 |
| 1100 | 1144 | - | 1200 | 1340 | 12 | 20 | 12 | 114.1 |
| 1200 | 1246 | 1255 | 1310 | 1450 | 12 | 20 | 12 | 124.4 |

公司地址:上海市松江工業(yè)園區(qū)
手機:13671689158
郵箱:shjingyi@vip.126.com
傳真:021-33321171
微信公眾號
